© semineebacau.ro

Open panel

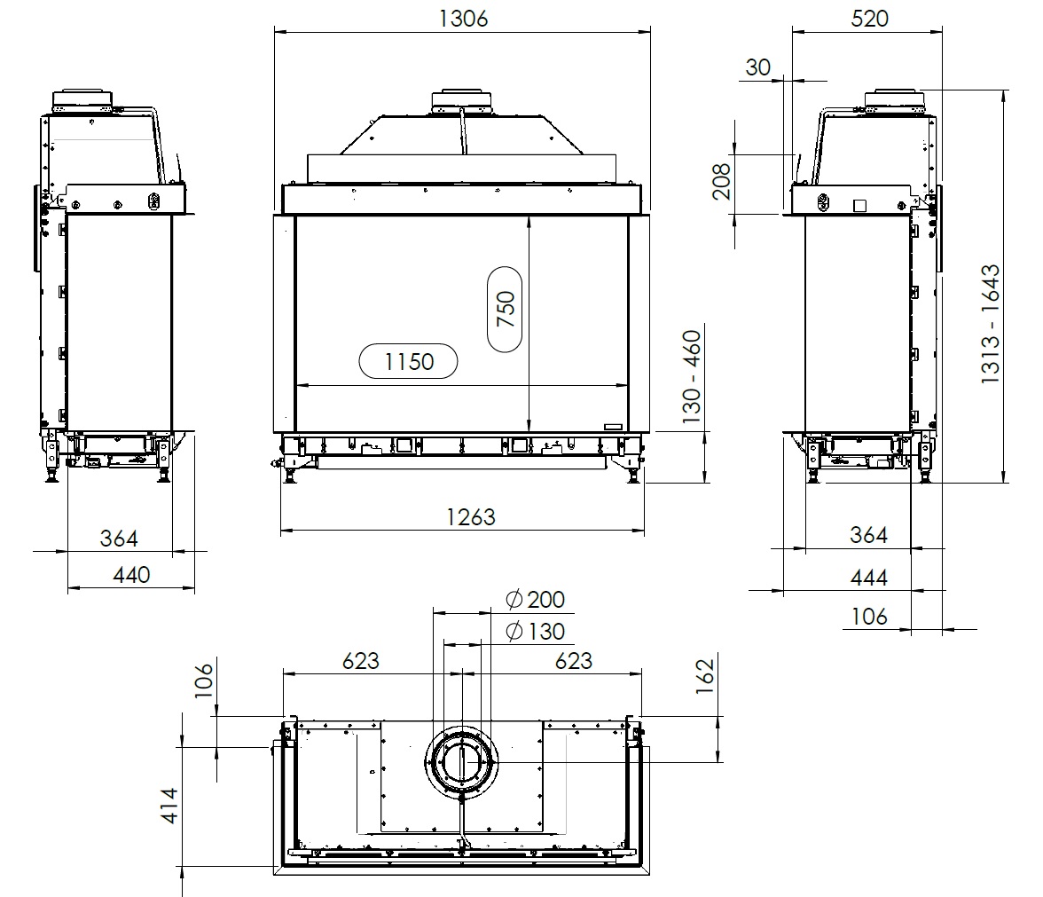
Focar pe gaz KALFIRE GP 115/75S

Inapoi la pagina anterioara

Produse Similare