© semineebacau.ro

Open panel

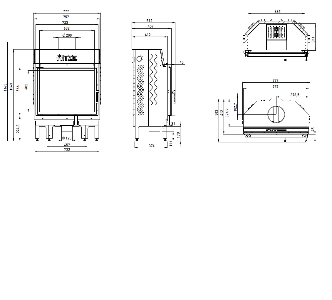
Focar semineu AL 16SH

Inapoi la pagina anterioara

Produse Similare